Salt Village Central, Bells Boulevard, South Kingscliff, NSW 2487   

For Lease - Retail & Co-Working

CO-WORKING SPACE
EXPRESSIONS OF INTEREST
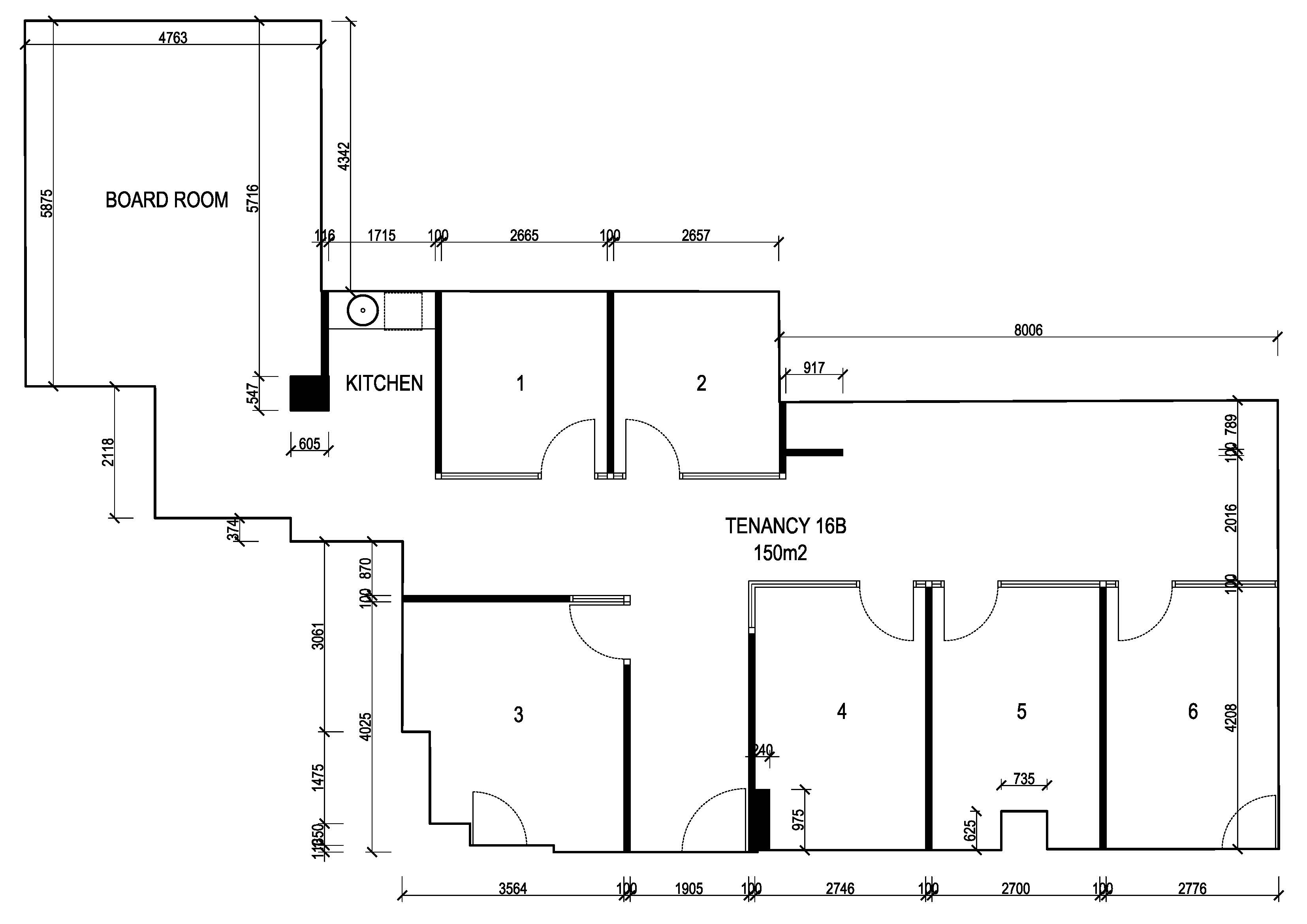
TENANCY 16B
Bells Blvd - Salt Village
Kingscliff 2478 NSW

Salt Village is seeking expressions of interest from those who might be considering a co-working environment in the vibrant Salt Village precinct with shops, cafes, restaurants and bars at the doorstep.

A brand new co-working office space, complete with six privately partitioned and lockable offices plus shared boardroom and kitchenette is located within the Village retail precinct at the Mantra on Salt Resort, where you’ll also find a successful and eclectic mix of retail including national fashion brands, award-winning restaurants, cafes, patisserie and pub – a great dynamic working environment for a small business.

Surf, walk on the beach or enjoy Salt Village’s parks, cycleways and footpaths between your time at work.

Salt Village is in the heart of the growing Kingscliff region and features a rapidly growing residential and resort destination on the Tweed Coast with three world class resorts comprising over 650 rooms, surrounded by a burgeoning suburban population of over 5,000 new residential homes within a 7km radius.

Just 6 self-contained offices are available for short (3+ months) or long term lease. Register your interest by email or call us.

 

*Please note that the tenancy building plans and dimensions are indicative only and subject to final survey.

CONTACT

Jack Ray 0411 868 192
Tom Ray 0411 174 705
or email us today.

Enquiry Form

  • This field is for validation purposes and should be left unchanged.

Stay Connected

Keep up-to-date on what's on at Salt Village.